Prodej stavebního pozemku, 802 m2, Brandýs nad Labem, Martinovská ulice

Evidenční číslo:
N05702
Typ nemovitosti:
Pozemek
Typ zakázky:
Prodej
Podtyp nemovitosti:
Stavební bydlení
Stav zakázky:
Zrealizováno
Lokalita:
Brandýs nad Labem-Stará Boleslav
Cena:
7 600 000 Kč
Cena poznámka:
Cena včetně provize RK, úschovy fin. prostředků a služeb
  • Fotky
photo_1
Makléř
Patrik Kubeš
Patrik Kubeš
+420 603 536 423
Popis
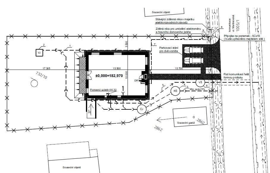
Nabízíme prodej mírně svažitého stavebního pozemku o výměře 802 m2 v klidné lokalitě Brandýsa nad Labem v Martinovské ulici. Pozemek je určený pro výstavbu rodinného domu a jeho velkou výhodou je to, že se nejedná o nově vzniklou oddělenou lokalitu na poli a podobně, ale o místo v původní zástavbě rodinných domů.

Na hranici pozemku je budník na elektřinu. Obecní kanalizace, plyn a voda vede přímo před pozemkem v ulici. Přístup na pozemek je po krajské asfaltové komunikaci. Dle územního plánu se jedná o zónu rodinného bydlení se zastavitelností 33%. Lze postavit i dům o dvou bytových jednotkách.

V ceně prodeje je i projekt na výstavbu samostatně stojícího, částečně podsklepeného domu s jasnou vizí, jak by se dala stavba a připojení sítí realizovat.

Pozemek se nachází na okraji obce ve směru na Martinov, cca 1,5 km od Masarykova náměstí v Brandýse nad Labem. Z pozemku je výhled na Labe směrem na Starou Boleslav a na cyklostezku, která zde prochází. Za řekou se nachází přírodní koupaliště Probošťská jezera.

Brandýs nad Labem je ideální místo pro život, kde je veškerá občanská vybavenost a spousta příležitostí ke sportování, kultuře a celkově pohodovému životu bez chaosu blízké Prahy, avšak s perfektní možností do Prahy dojíždět autem, nebo pomocí PID - vlakem i autobusem. Dojezdová vzdálenost autem 15 min na Černý Most nebo do Letňan.

Pro kompletní informace o tomto pozemku a možnosti výstavby neváhejte kontaktovat makléře, který vše osobně prověřil a navíc v Brandýse nad Labem žije.
Zobrazit více
Rozšiřující údaje
Možno hypotéka:
Ne
Anuita:
0 Kč
Plocha:
802 m2
Plocha parcely:
802 m2
Kanalizace:
Městská
Balkón:
Ne
Lodžie:
Ne
Sklep:
Ne
Terasa:
Ne
Výtah:
Ne
Celkem pater:
0
Počet místností:
0
Počet nadzemních podlaží:
1
Počet podzemních podlaží:
0
Počet parkovacích míst:
0
Rok renovace:
0
Rok výstavby:
0
Více informací
Mapa
  • Mám zájem o prohlídku
  • Odeslat na email

Všechny fotky
photo_2 photo_3 photo_4 photo_5 photo_6 photo_7 photo_8 photo_9 photo_10 photo_11 photo_12 photo_13 photo_14 photo_15 photo_16