info@screality.cz
728 333 111
" PRO NÁS PŘÍPAD NEKONČÍ PODPISEM KUPNÍ SMLOUVY "
" 90% NAŠÍ NABÍDKY JE NA DOPORUČENÍ "
Úvod
Naše služby
Nabídka
Poptávka
Odhad
Blog
Náš tým
Kancelář
Kompletní nabídka
Prodej
Byty
Rodinné domy
Činžovní domy
Rekreační objekty
Komerční objekty
Pozemky
Ostatní
Pronájem
Byty
Rodinné domy
Ostatní
{1}
##LOC[OK]##
{1}
##LOC[OK]##
##LOC[Cancel]##
{1}
##LOC[OK]##
##LOC[Cancel]##
Pronájem prostorné skladovací nebo výrobní haly ve Slapech nad Vltavou
Evidenční číslo:
N05998
Typ nemovitosti:
Komerční
Typ zakázky:
Pronájem
Podtyp nemovitosti:
Skladové prostory
Stav zakázky:
Aktivní
Lokalita:
Slapy
Cena:
75 Kč za m2 za měsíc
Cena poznámka:
75,- Kč/m2 hala a50,- Kč/m2/přístřešky
Fotky
Makléř
Alena Lakomá
lakoma@screality.cz
+420 607 809 227
Popis
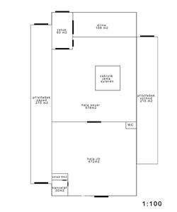
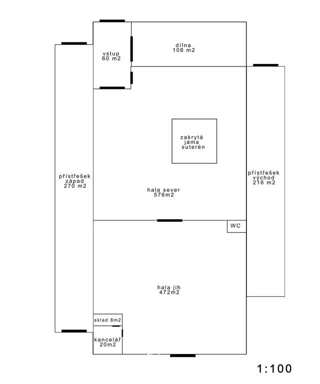
Nabízíme vám na pronájem zděnou halu s plechovým pláštěm, určenou jako skladovací nebo výrobní, výška stropu je 4 m. Hala je v oploceném areálu, nevytápěná, ale s možností doplnění dílenskými kamny. K hale přiléhají dva uzamykatelné přístřešky.
Do haly je přívod elektřiny, vody i kanalizace, je zde WC a k dispozici je i kancelář
Hala je rozdělená na několik částí - dva hlavní prostory jsou o velikosti 472 m2 a 576 m2 (zde je k dispozici zakrytá jáma)
dále je zde dílna o velikosti 108 m2, vstup 60 m2, kancelář 20 m2, sklad 8 m2.
Venku jsou k dispozici přístřešky z obou delších stran budovy - 270 a 216 m2.
Je možnost pronajmout pouze část (např. samostatně půlku haly, nebo přístřešek, nebo různé kombinace. Sociální zařízení lze dobudovat i v dalších částech haly.
Cena pronájmu je 75,- Kč/m2/měsíc za halu a 50,- Kč/m2/měsíc za přístřešky
Zobrazit více
Rozšiřující údaje
Možno hypotéka:
Ne
Anuita:
0 Kč
Plocha:
m
2
Obytná plocha:
1244 m
2
Užitná plocha:
1244 m
2
Elektřina:
230/400 V
Kanalizace:
Městská
Voda:
Vodovod
Balkón:
Ne
Lodžie:
Ne
Sklep:
Ne
Terasa:
Ne
Výtah:
Ne
Konstrukce budovy:
Montovaná
Celkem pater:
0
Počet místností:
0
Počet nadzemních podlaží:
1
Počet podzemních podlaží:
0
Počet parkovacích míst:
0
Rok renovace:
0
Rok výstavby:
0
Stav nemovitosti:
Dobrý
Zařízeno:
Nezařízeno
Výška stropu:
4
Energetická náročnost budovy:
G - Mimořádně nehospodárná
Více informací
Mapa
Mám zájem o prohlídku
Odeslat na email
Neplatný kód obrázku
Jiný obrázek
Opište kód obrázku
Odeslat
Neplatný kód obrázku
Jiný obrázek
Opište kód obrázku
Odeslat
Všechny fotky