Pronájem zrekonstruovaného cihlového bytu 3+1/komora/balkony, 81m2, OV, cihla, 3.p., nezařízené, Bělocerkevská ul. P 10

Evidenční číslo:
N05995
Typ nemovitosti:
Byt
Typ zakázky:
Pronájem
Dispozice:
3+1
Stav zakázky:
Rezervace
Lokalita:
Bělocerkevská, Praha 10
Cena:
28 000 Kč za měsíc
Cena poznámka:
+ 6.100,-Kč/měs. poplatky (2.os.) + převod elektroměru a plynoměru, vratná kauce 1.nájem, provize rk 1.nájem
  • Fotky
photo_1
Makléř
Patrik Kubeš
Patrik Kubeš
+420 603 536 423
Popis
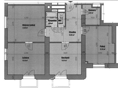
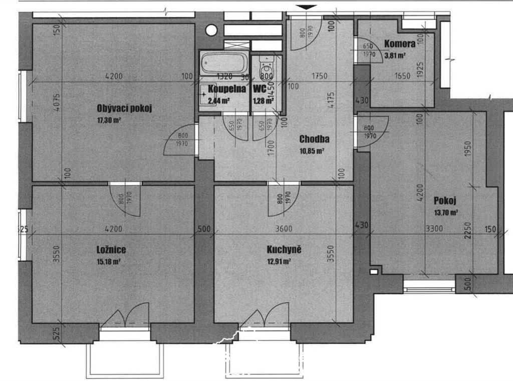
Nabízíme pronájem prostorného, světlého bytu 3+1 o velikosti 81 m2 ve třetím patře s výtahem v udržovaném cihlovém činžovním domě na Praze 10 Vršovice v Bělocerkevské ulici.
K příslušenství patří dva balkony (v kuchyni a ložnici), velká komora v bytě, která může sloužit jako sklep, nebo jako pracovna. Dva pokoje ze tří jsou neprůchozí a nabízí možnost spolubydlení. V průchozím obývacím pokoji je zánovní sedací souprava, která je součástí pronájmu. Orientace je na jihozápad - celý den sluníčko.
Byt je čerstvě po instalaci nové kuchyňské linky z IKEA s myčkou, elektrickou troubou, plynovou čtyřplotýnkou a novou lednicí s mrazákem. Také je nově vymalováno a došlo k repasi parketových podlah. V koupelně je vana a pračka, wc je samostatné s umyvadlem. Možnost vysokorychlostního internetu. Poplatky jsou uvedené na tři osoby a zahrnují veškeré platby včetně topení a vody + převod elektřiny (cca 1000,-Kč/měs) + plyn (cca 300,-Kč/měs).
Za domem je parková úprava s možností posezení, před domem zastávka autobusu s dojezdem na metro A Želivského do pěti minut. Byt je určen k dlouhodobému pronájmu, nastěhování možné ihned.
Zobrazit více
Rozšiřující údaje
Možno hypotéka:
Ne
Anuita:
0 Kč
Plocha:
81 m2
Obytná plocha:
81 m2
Užitná plocha:
81 m2
Balkón:
Ano
Lodžie:
Ne
Sklep:
Ne
Terasa:
Ne
Výtah:
Ano
Konstrukce budovy:
Smíšená
Patro:
4. patro
Celkem pater:
5
Počet místností:
0
Počet nadzemních podlaží:
6
Počet podzemních podlaží:
1
Počet parkovacích míst:
0
Rok renovace:
2026
Rok výstavby:
1955
Stav nemovitosti:
Velmi dobrý
Typ vlastnictví:
Osobní
Zařízeno:
Nezařízeno
Volný od:
01.03.2026
Energetická náročnost budovy:
G - Mimořádně nehospodárná
Více informací
Mapa
  • Mám zájem o prohlídku
  • Odeslat na email

Všechny fotky
photo_2 photo_3 photo_4 photo_5 photo_6 photo_7 photo_8 photo_9 photo_10 photo_11 photo_12 photo_13 photo_14 photo_15 photo_16 photo_17 photo_18 photo_19 photo_20 photo_21 photo_22