Pronájem bytu 2+kk, 44 m2, 3. patro, po kompletní rekonstrukci, sklep, nezařízené, Pernerova ul. Karlín, Praha 8

Evidenční číslo:
N06023
Typ nemovitosti:
Byt
Typ zakázky:
Pronájem
Dispozice:
2+kk
Stav zakázky:
Aktivní
Lokalita:
Pernerova, Praha 8
Cena:
23 000 Kč za měsíc
Cena poznámka:
+ 3.000,-Kč/měs. poplatky, vratná kauce 1.nájem, provize rk 1.nájem
  • Fotky
photo_1
Makléř
Patrik Kubeš
Patrik Kubeš
+420 603 536 423
Popis
Nabízíme pronájem zrekonstruovaného bytu o dispozici 2+kk (1+1) v udržovaném menším činžovním domě ve špičkové lokalitě Karlína v Pernerově ulici na Praze 8.

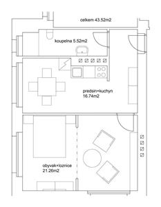
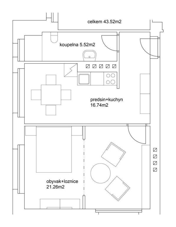
Byt je situován ve třetím patře ze čtyř bez výtahu. Podlahová plocha je 44 m2. K příslušenství patří sklep o vel. 4 m2 v suterénu domu. Celková kompletní rekonstrukce proběhla v roce 2018. Dům je na klidném místě u Lyčkova náměstí a v rámci pronájmu je možné užívat společnou zahradu kolem domu.

Dispozice bytu: Vstupní chodba s kuchyní (17 m2), dále samostatný pokoj s možností rozdělení na obývací a ložnicovou část (21 m2), koupelna se sprchou a wc (5,5 m2).

Vytápění a ohřev vody zajišťuje vlastní nový plynový kotel. Okna v bytě jsou dřevěná, v koupelně a na chodbě je podlahovou krytinou dlažba, v pokojích jsou repasované a nalakované parkety. V domě dostupnost Vodafone/UPC internetu.

Byt je k dispozici od 15.5.2026 a je určen k dlouhodobému pronájmu. V okolí se nachází několik příjemných kaváren a restaurací, pěší dostupnost na metro C Křižíkova. Občanská vybavenost je zde kompletní a celkově je Karlín výborným místem k bydlení.
Zobrazit více
Rozšiřující údaje
Možno hypotéka:
Ne
Anuita:
0 Kč
Plocha:
44 m2
Obytná plocha:
44 m2
Užitná plocha:
44 m2
Balkón:
Ne
Lodžie:
Ne
Sklep:
Ne
Terasa:
Ne
Výtah:
Ne
Konstrukce budovy:
Smíšená
Patro:
4. patro
Celkem pater:
4
Počet místností:
0
Počet nadzemních podlaží:
5
Počet podzemních podlaží:
0
Počet parkovacích míst:
0
Rok renovace:
2018
Rok výstavby:
1954
Stav nemovitosti:
Velmi dobrý
Typ vlastnictví:
Družstevní
Zařízeno:
Nezařízeno
Volný od:
15.05.2026
Energetická náročnost budovy:
C - Úsporná
Ukazatel energetické náročnosti budovy:
108 kWh/m2 za rok
Energetická náročnost podle vyhlášky:
264/2020 Sb
Více informací
Mapa
  • Mám zájem o prohlídku
  • Odeslat na email

Všechny fotky
photo_2 photo_3 photo_4 photo_5 photo_6 photo_7 photo_8 photo_9 photo_10 photo_11 photo_12 photo_13 photo_14 photo_15 photo_16 photo_17 photo_18