Novostavba RD 5+kk, pozemek 873 m2

Evidenční číslo:
N05628
Typ nemovitosti:
Dům
Typ zakázky:
Prodej
Podtyp nemovitosti:
Samostatný
Stav zakázky:
Zrealizováno
Lokalita:
Divišov
Cena:
11 100 000 Kč
  • Fotky
photo_1
Makléř
Milan Mattanelli
Milan Mattanelli
+420 775 775 615
Popis
PRODÁNO:

Hledáte moderní, nízkoenergetický dům (tepelné čerpadlo, FVE v ceně), kde si navíc můžete finální interiérovou podobu přizpůsobit podle vlastních představ ?

Aktuálně vám můžu nabídnout poslední samostatně stojícího RD, který je součástí 2.etapy výstavby RD v obci Divišov.

Dům je již po kolaudaci.
Možnost platby hypotékou, kterou vám v rámci projektu zajistíme.

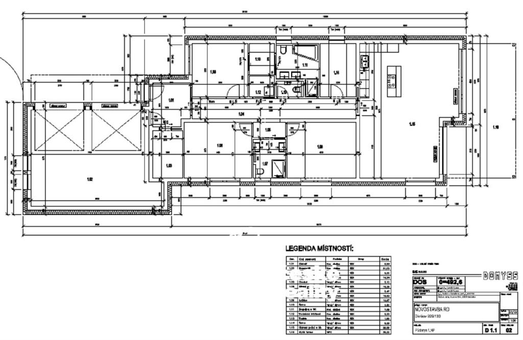
Dům č. 3 (UP: 270 m2), 5+kk (157m2), dvougaráž, terasa, sklep) bude postavený na pozemku o velikosti 873 m2.

Díky využití moderních technologií, jako je tepelné čerpadlo, osazení fotovoltaických panelů, rekuperace, podlahové topení, předokenní žaluzie, se snoubí vysoký standard s velmi úsporným provozem.

RD má energetický štítek „A“ značící úspornou energetickou náročnost.

Základní popis výstavby:
Jedná o novou výstavbu (2.etapa) dvou samostatných jednopodlažních zděných RD s plochou střechou (vč. intenzivní zeleně).

Stavba byla zahájena v říjnu 2022 a ke kolaudaci došlo v červenci 2024.

Základní dispozice RD:
Zádveří, komora, 2x chodba, dětský pokoj (16m2), druhý dětský pokoj (16m2), ložnice (13m2), šatna, 2x koupelna s WC, 1x samostatné WC, technická místnost, pracovna (8m2), obývací pokoj s kuchyňským koutem (celkem 52m2), krytá terasa (33m2).

Dále dvougaráž (51m2) a sklep (30m2) pod terasou.

Základní technické informace:
Zdrojem tepla bude tepelné čerpadlo vzduch - voda - Nilan Compact. Tepelné čerpadlo se skládá ze dvou jednotek (vnitřní, vnější). Vnitřní jednotka slouží, jak pro větrání celého objektu s "aktivní" rekuperací, tak pro vytápění a ohřev TV.
Topný systémem v RD bude podlahové topení, které je navrženo jako teplovodní s nuceným oběhem.

Vodovodní a kanalizační přípojky budou nové. Dešťové vody budou odváděny venkovními svody do retenční nádoby (jímky), možnost využití na zalévání zahrady.

Finální podoba RD bude dle vašich představ, RD bude váš, a proto pouze vy rozhodnete, jak bude vypadat.
Chcete vanu nebo sprchu?
Chcete dřevěnou podlahu nebo vinil?
Máte jiné požadavky na vybavení nebo materiál?
Nevadí !!!

Vzhledem k tomu, že se RD prodávají v tzv. kolaudačním minimu (bez finální dokončovací podoby, více u makléře), můžete si vybrat ze dvou možností finalizace vašeho budoucího RD.

Za prvé svépomocí, tj. zájemce má právo si vybrat vlastního dodavatele pro finální interiérovou úpravu.

Za druhé klientské požadavky a návrhy finalizace interiéru vašeho RD Vám může poskytnout přímo prodávající a to na základě předem schváleného rozpočtu, vypracovaného podle vašeho zadání.

Občanská vybavenost:
Městys Divišov se nachází mezi městy Benešov a Vlašim, asi 15 km od Benešova, na 41 km dálnice Praha-Brno v Posázaví v okrese Benešov. V Divišově je: městský a stavební úřad, ZŠ,MŠ,pošta,lékárna,zdravotní středisko,přírodní koupaliště,potraviny,restaurace,atd..
Doprava: 3km na dálnici D1 (exit 41), BUS směr - Benešov, Vlašim (vlak), Chocerady (vlak), Praha.
Zobrazit více
Rozšiřující údaje
Možno hypotéka:
Ano
Anuita:
0 Kč
Plocha:
270 m2
Obytná plocha:
156 m2
Zastavěná plocha:
270 m2
Užitná plocha:
270 m2
Plocha parcely:
873 m2
Plocha sklepa:
30 m2
Plocha terasy:
33 m2
Elektřina:
230/400 V
Kanalizace:
Městská
Voda:
Vodovod
Balkón:
Ne
Lodžie:
Ne
Sklep:
Ano
Terasa:
Ano
Výtah:
Ne
Parkování:
Garáž
Konstrukce budovy:
Cihla
Celkem pater:
0
Počet místností:
5
Počet nadzemních podlaží:
1
Počet podzemních podlaží:
1
Počet parkovacích míst:
0
Rok renovace:
0
Rok výstavby:
2024
Stav nemovitosti:
Novostavba
Zařízeno:
Nezařízeno
Energetická náročnost budovy:
A - Mimořádně úsporná
Ukazatel energetické náročnosti budovy:
23 kWh/m2 za rok
Energetická náročnost podle vyhlášky:
78/2013 Sb
Více informací
Mapa
  • Mám zájem o prohlídku
  • Odeslat na email

 

 

Všechny fotky
photo_2 photo_3 photo_4 photo_5 photo_6 photo_7 photo_8