Byt 1+kk (č.6, dům Natálie), parkovací stání

Evidenční číslo:
N06004
Typ nemovitosti:
Byt
Typ zakázky:
Prodej
Dispozice:
1+kk
Stav zakázky:
Rezervace
Lokalita:
Mládežnická, Mšené-lázně
Cena:
1 404 000 Kč
  • Fotky
photo_1
Makléř
Milan Mattanelli
Milan Mattanelli
+420 775 775 615
Popis
REZERVACE:

Hledáte bezpečné a pohodové bydlení nejen ve vyšším věku, kde máte vše důležité doslova na dosah ruky?

Nebo zvažujete smysluplnou investici do nemovitosti s dlouhodobým a stabilním využitím?

Nabízím bytové jednotky situované pouhých 550 metrů od areálu oblíbených Lázní Mšené, který poskytuje ideální zázemí pro seniory i osoby hledající klid a dostupnou péči.

Bytové jednotky vhodné nejen k lázeňským pobytům, ale i běžnému dlouhodobému pronájmu s možností využití zvýhodněných lázeňských služeb.

Výhody bydlení pro seniory:
- přímá vazba na lázeňskou a lékařskou péči
- dostupné služby: lékař, masáže, wellness, stravování, úklid a další
- možnost kulturních a společenských aktivit v areálu lázní
- pocit bezpečí a jistoty každodenního fungování

Investiční potenciál:
- dlouhodobě atraktivní lokalita se stálou poptávkou bydlení pro seniory
- možnost dlouhodobého pronájmu (některé jednotky jsou již obsazené)
- nízké provozní náklady díky menším dispozicím
- stabilní výnos bez nutnosti náročné správy (možná dohoda přímo s provozovatelem lázní)

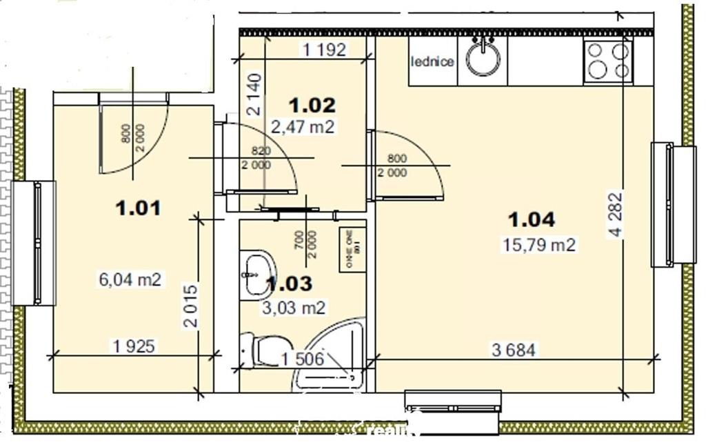
Nabízený byt č. 6 se nachází v domě Natálie a je řešen jako 1+kk o výměře 21,6 m², ideální pro jednotlivce. K bytu náleží parkovací stání (není součástí ceny) a je zde možnost přikoupení zahrádky.

Dům Natalie prošel úpravou, nejedná se o novostavbu, ale o tvz. "second-hand" nemovitost. Byl přizpůsoben malometrážnímu, pohodlnému a bezpečnému bydlení s vazbou na lázeňský areál. Jedná se o jednopodlažní objekt s novou střešní krytinou.

V domě Natalie se nachází:
- šest bytových jednotek 1+kk (od velikosti 21,4 m2 do 40,6 m2)
- pět bytových jednotek 1+1, přičemž některé lze využít jako 2+kk (od velikosti 30,6 m2 do 58,3 m2)
- součástí každé bytové jednotky je chodba, sociální zázemí, kuchyně vč. obytné místnosti (u některých dvě)
- společné prostory jsou tvořeny vstupním zádveřím, chodbou s druhým únikovým východem, místností s rozvaděči elektro, místností na kočárky a kola, sušárna s úklidovou místností s výlevkou.
- každý byt má vlastní topení (přímotopy) a ohřev teplé vody (boiler)

Okolí lázní nabízí klidnou přírodu, léčivé prostředí a množství možností pro procházky, lehkou turistiku i cyklistiku. Za zmínku stojí hora Říp, zámek Libochovice či hrad Házmburk. V blízké Ředhošti se pravidelně konají tradiční trhy.

Dobrá dopravní dostupnost do Slaného, Roudnice nad Labem i Prahy (autem i autobusovým spojením).

Nemovitost je bez právních omezení. Možnost financování hypotečním úvěrem, který vám rádi zajistíme.
Zobrazit více
Rozšiřující údaje
Možno hypotéka:
Ano
Anuita:
0 Kč
Plocha:
22 m2
Obytná plocha:
22 m2
Užitná plocha:
22 m2
Balkón:
Ne
Lodžie:
Ne
Sklep:
Ne
Terasa:
Ne
Výtah:
Ne
Konstrukce budovy:
Cihla
Patro:
1. patro
Celkem pater:
1
Počet místností:
0
Počet nadzemních podlaží:
2
Počet podzemních podlaží:
0
Počet parkovacích míst:
0
Rok renovace:
0
Rok výstavby:
2021
Stav nemovitosti:
Dobrý
Typ vlastnictví:
Osobní
Zařízeno:
Částečně zařízeno
Dopravní dostupnost:
Auto
Energetická náročnost budovy:
C - Úsporná
Ukazatel energetické náročnosti budovy:
94 kWh/m2 za rok
Energetická náročnost podle vyhlášky:
78/2013 Sb
Více informací
Mapa
  • Mám zájem o prohlídku
  • Odeslat na email

Všechny fotky
photo_2 photo_3 photo_4 photo_5 photo_6 photo_7 photo_8 photo_9 photo_10 photo_11 photo_12 photo_13 photo_14 photo_15 photo_16 photo_17 photo_18 photo_19 photo_20